Book a valuation

42 Church Street,
Ormskirk,
Lancashire,
L39 3AW

01695 579483
hello@thomassamuel.co.uk

Description

Key Features
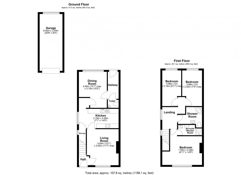
  • Extended 3 Bedroom End Terrace Home
  • Two Ground Floor Reception Rooms
  • Three Bedrooms
  • Separate Family Shower Room
  • Not Overlooked to Rear
  • Large Rear Garden
  • Detached Garage
  • Off Road Parking

This extended 3-bedroom end terrace home offers a perfect blend of spacious, comfortable living and a private, tranquil setting. Ideal for families, professionals, or anyone seeking a versatile home, it features modern amenities, generous rooms, and a large rear garden, all within easy reach of Ormskirk Town Centre, local schools, and excellent transport links.



The ground floor comprises two well-proportioned reception rooms, perfect for entertaining guests or relaxing with the family. The layout provides flexibility for a formal living space, dining area, or even a home office, ensuring that the home adapts to a variety of lifestyles.



Upstairs, there are three generous bedrooms. The main bedroom benefits from an en-suite shower room for added convenience, while the two additional double bedrooms are ideal for children, guests, or a dedicated workspace. A separate family shower room ensures smooth morning routines for all residents.



The property enjoys a large, private non-overlooked rear garden, offering an ideal space for outdoor activities, gardening, or al fresco dining. A detached garage provides secure storage for vehicles or equipment, with potential for conversion into a workshop. Off-road parking to the front of the home ensures convenience for both residents and visitors.



Nestled in a highly desirable area, the home is within easy reach of Ormskirk Town Centre, with its range of shops, cafes, and amenities. Families will benefit from nearby well-regarded schools, while transport links make commuting straightforward. Despite its central convenience, the property maintains a peaceful, private setting, combining the best of both worlds.

Material Information

  • Local Authority: West Lancashire County Council
  • Council Tax Band: B
  • Water Supply: Direct Main Waters
  • Electricity Supply: National Grid
  • Sewerage: Standard
  • Heating Supply: Gas Central
  • Construction Materials: Brick And Block
  • Roof Material: Clay Tiles
  • Is Loft Boarded: No
  • Has Required Access: 1
  • Parking: Parking Space Type - Driveway
  • Parking: Parking Space Type - Garage
  • All Others: Ask Agent

Location

Floorplan

Floorplan for Grimshaw Lane, Ormskirk, L39

EPC

EPC Graph for Grimshaw Lane, Ormskirk, L39
Back to search

Grimshaw Lane, Ormskirk
£235,000 Freehold

3 2 2