Book a valuation

42 Church Street,
Ormskirk,
Lancashire,
L39 3AW

01695 579483
hello@thomassamuel.co.uk

Description

Key Features
  • Semi Detached Cottage
  • 2 Bedrooms
  • Modernisation Required
  • Set on 1 Acre of Land
  • Building & Development Potential
  • Countryside Views
  • Expansive Outbuildings
  • Peaceful Location

Fantastic development opportunity on New Cut Lane, Halsall

Set on approximately one acre of land, this two-bedroom semi-detached cottage offers an exceptional opportunity for full renovation or redevelopment, subject to the necessary planning permissions. Surrounded by open fields, the property enjoys a peaceful semi-rural setting while remaining just a five-minute drive from Birkdale Village, where you’ll find a range of shops, cafés, restaurants and everyday amenities. Birkdale also offers excellent transport links, including a train station and regular bus services providing easy access to Southport, Liverpool and beyond.

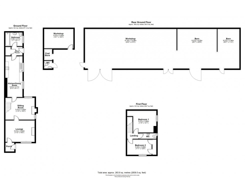
The current accommodation comprises a front-facing living room, a second reception room leading through to the kitchen, and a ground-floor bathroom. Upstairs, there are two bedrooms and a separate WC. The property requires full refurbishment, offering a blank canvas for buyers looking to modernise, extend or redesign the space to suit their own vision.

Externally, the generous plot provides a wealth of additional features and possibilities. There is a coal shed, a smaller workshop and an outdoor WC, as well as a substantial workshop building that leads through to two former stables and an additional storage area, ideal for those needing space for hobbies, vehicles or equipment. The gardens are well maintained and include a beautiful pond currently stocked with carp, along with a sheltered allotment area. Several fenced sections provide options for keeping poultry, growing produce or could be repurposed to create open landscaped grounds. Towards the end of the plot is a gated section with two further sheds and open views across the surrounding fields.

Given its size and layout, the property offers a variety of potential uses, from a complete residential transformation to a smallholding, workshop-based business or equestrian setup (subject to planning). Alternatively, it presents an excellent long-term investment opportunity in a highly desirable West Lancashire location.

A rare chance to acquire a property with substantial scope and land in this sought-after area.

Contact Thomas Samuel today to arrange your viewing and explore the full potential this unique plot has to offer.

Material Information

  • Council Tax Band: C
  • Water Supply: Direct Main Waters
  • Electricity Supply: National Grid
  • Sewerage: Standard
  • Heating Supply: Wood Burner
  • Heating Supply: Other
  • Heating Supply Other: Back Boiler
  • Construction Materials: Brick And Block
  • Is Loft Boarded: No
  • Outside Space: Type - Garden
  • Outside Space: Orientation - NE
  • Parking: Parking Space Type - Driveway
  • Parking: Capacity - 3
  • All Others: Ask Agent

Location

Floorplan

Floorplan for New Cut Lane, Halsall

EPC

EPC Graph for New Cut Lane, Halsall
Back to search

New Cut Lane, Halsall
£600,000 Freehold

2 1 2