Book a valuation

42 Church Street,
Ormskirk,
Lancashire,
L39 3AW

01695 579483
hello@thomassamuel.co.uk

Description

Key Features
  • Luxurious New Build
  • 3 Bedrooms
  • Open Plan Kitchen/Living
  • Stunning Family Bathroom
  • Utility Room
  • 2 Allocated Parking Spaces

Approached via private gated access off Rainford Road, a country lane leads you to this stunning development, surrounded by open countryside yet ideally positioned for access to Ormskirk, Aughton and beyond. Excellent commuter links and nearby motorway connections make it perfectly placed for those who need easy access to surrounding towns and cities, while still enjoying a tranquil, semi-rural lifestyle.

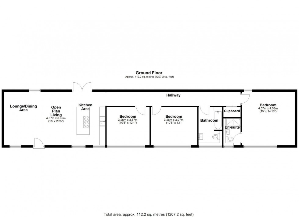
Plot eight is a stunning conversion of the only single storey building on site. With an internal floor space of 1285 square feet, the property consists of 3 bedrooms, the

master with it’s own en suite and an open plan kitchen/diner/living room.

This property also benefits from a manageable garden in excess of 2590 square feet which incorporates a paved terrace area and large planters.

Holly Fold Barns is an exclusive collection of 3, 4 and 5 bedroom bespoke barn conversions and barn-style new builds, set within the semi-rural village of Bickerstaffe, West Lancashire. Once a working farm dating back to the mid-19th century, the development has been thoughtfully designed to breathe new life into this charming setting, blending traditional character with the comfort and convenience of modern living.

Please note- The images shown are CGI representations intended to illustrate the potential layout and finish. The property itself is offered unfurnished and is in excellent condition, ready for your personal touch.

Material Information

  • Local Authority: West Lancashire County Council
  • Service Charge Notes: TBC
  • Water Supply: Direct Main Waters
  • Electricity Supply: National Grid
  • Sewerage: Sewage Treatment Plants
  • Heating Supply: Air Heat Pump
  • Construction Materials: Brick And Block
  • Roof Material: Concrete Tiles
  • Is Loft Boarded: No
  • Has Flood Defences: 1
  • Outside Space: Type - Garden
  • Outside Space: Orientation - NE
  • Parking: Parking Space Type - EV Charging
  • Parking: Capacity - 2
  • Parking: Parking Space Type - Allocated Parking
  • Parking: Capacity - 2
  • All Others: Ask Agent

Location

Floorplan

Floorplan for Plot 8, Holly Fold Barns, Bickerstaffe, L39
Back to search

Plot 8, Holly Fold Barns
£450,000 Freehold

3 2 1