Book a valuation

42 Church Street,
Ormskirk,
Lancashire,
L39 3AW

01695 579483
hello@thomassamuel.co.uk

UNDER OFFER

Description

Key Features
  • NO UPWARD CHAIN
  • Three Storey Townhouse
  • Close To Ormskirk Town Centre
  • Three Bedrooms
  • Bedroom with En-Suite Shower Room
  • Family Bathroom
  • Allocated Parking for 2 Cars, to Rear
  • South Facing Rear Garden

Nestled in a popular and well-established residential location close to the heart of Ormskirk Town Centre, this well presented three-bedroom townhouse presents a fantastic opportunity for comfortable and modern living in a highly desirable area.

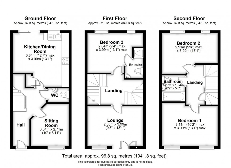
Boasting a spacious and versatile three-storey layout, the ground floor features a stylish contemporary kitchen/diner – the perfect setting for family meals, entertaining friends, or simply enjoying daily life in a well-designed space. A second reception room can be utilised in a number of different ways.

On the first floor, a generously sized lounge offers a welcoming and peaceful retreat, ideal for unwinding after a long day. while the bedroom to this floor enjoys the added luxury of a private en-suite shower room, delivering both comfort and convenience.

The second floor comprises two well-proportioned bedrooms and a modern family bathroom,

This well presented home also benefits from allocated parking for two cars at the rear, as well as a private rear, south facing garden, offering a tranquil spot to relax outdoors.

The property enjoys a prime position just a short walk from Ormskirk’s vibrant town centre, which offers an excellent selection of independent shops, high street retailers, cafés, restaurants, and pubs. The town is well known for its weekly markets, rich history, and friendly community atmosphere. It also benefits from superb transport links, including the nearby Ormskirk railway station offering direct services to Liverpool and Preston, and easy access to the M58 and M6 motorways for commuting further afield.

With outstanding local schools, lovely nearby parks and countryside walks, and the Edge Hill University campus within close reach, this is an ideal location for families, first time buyers, professionals, and investors alike.



Material Information

  • Local Authority: West Lancashire County Council
  • Council Tax Band: C
  • Water Supply: Direct Main Waters
  • Electricity Supply: National Grid
  • Sewerage: Standard
  • Heating Supply: Gas Central
  • Roof Material: Concrete Tiles
  • Is Roof Renovated: 1
  • Is Loft Boarded: No
  • Parking: Parking Space Type - Allocated Parking
  • Parking: Capacity - 2
  • All Others: Ask Agent

Location

Floorplan

Floorplan for Warpers Way, Ormskirk, L39

EPC

EPC Graph for Warpers Way, Ormskirk, L39
Back to search

Warpers Way, Ormskirk
£239,950 Freehold

3 2 2