Book a valuation

42 Church Street,
Ormskirk,
Lancashire,
L39 3AW

01695 579483
hello@thomassamuel.co.uk

UNDER OFFER

Description

Key Features
  • Luxurious New Build
  • 3 Bedrooms
  • Open Plan Kitchen/Living
  • Stunning Family Bathroom
  • Utility Room

Plot 6

Approached via private gated access off Rainford Road, a country lane leads you to this stunning development, surrounded by open countryside yet ideally positioned for access to Ormskirk, Aughton and beyond. Excellent commuter links and nearby motorway connections make it perfectly placed for those who need easy access to surrounding towns and cities, while still enjoying a tranquil, semi-rural lifestyle.

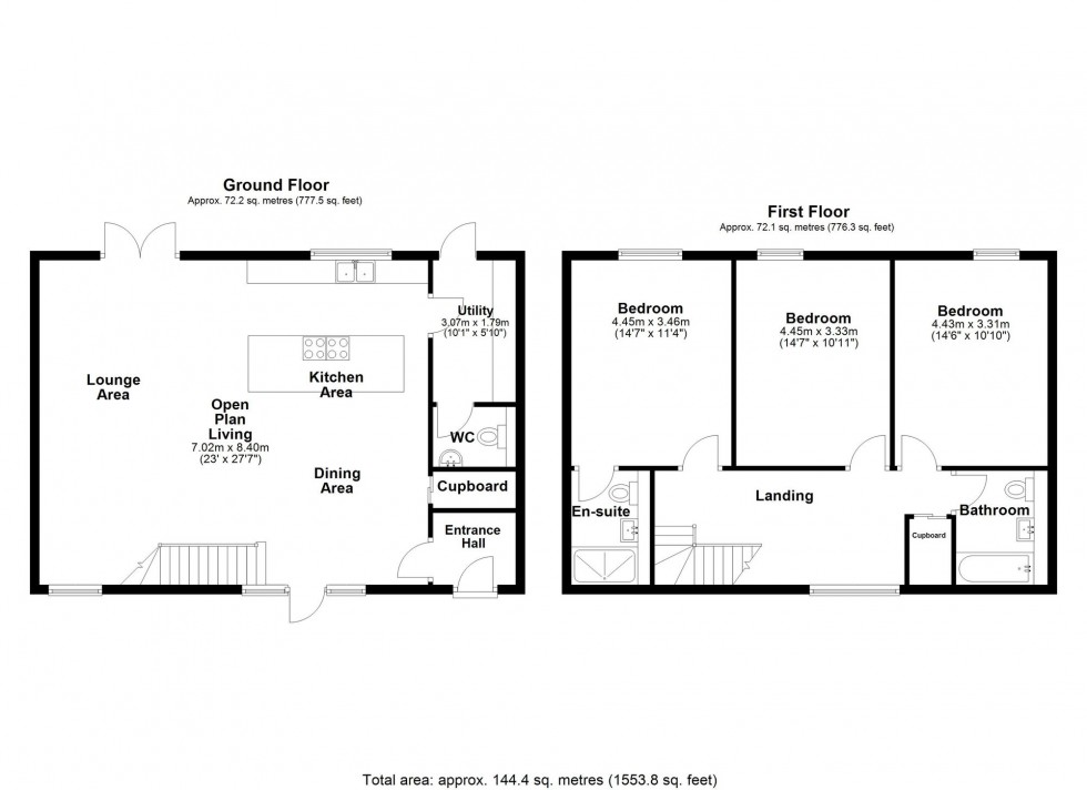
This impressive new build barn style property which seamlessly blends luxury new build with traditional country living. This property consists of three bedrooms, the master with it’s own en suite, open plan kitchen/diner/living room, utility room, downstairs WC and family bathroom.

This property also benefits from a large garden in excess of 3100 square feet which incorporates a paved terraced area and large planters.

Holly Fold Barns is an exclusive collection of 3, 4 and 5 bedroom bespoke barn conversions and barn-style new builds, set within the semi-rural village of Bickerstaffe, West Lancashire. Once a working farm dating back to the mid-19th century, the development has been thoughtfully designed to breathe new life into this charming setting, blending traditional character with the comfort and convenience of modern living.

Material Information

  • Local Authority: West Lancashire County Council
  • Service Charge Notes: Tbc
  • Water Supply: Direct Main Waters
  • Electricity Supply: National Grid
  • Sewerage: Standard
  • Heating Supply: Air Heat Pump
  • Is Loft Boarded: No
  • Outside Space: Type - Garden
  • Parking: Parking Space Type - Allocated Parking
  • Parking: Capacity - 2
  • All Others: Ask Agent

Location

Floorplan

Floorplan for Holly Fold Barns, Rainford Road, L39
Back to search

Holly Fold Barns, Rainford Road
£475,000 Freehold

3 2 1